CS House Taman Baru
Tata Tata Architects
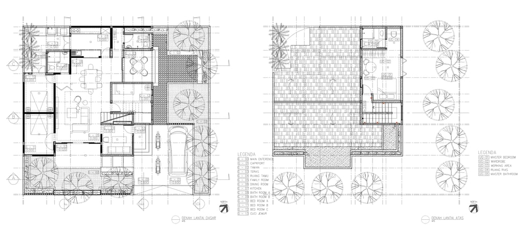
Pertama-tama, proyek ini adalah renovasi rumah klien kami. Dengan kebutuhan program ruang baru, konsep segar diperlukan untuk menggantikan hampir seluruh bagian rumah. Kami menyebutnya rumah kotak modern di Mataram karena kami percaya desain rumah berbentuk kotak belum ada di Mataram, Nusa Tenggara Barat.
Sebelum dibongkar, rumah tersebut tidak dalam kondisi nyaman untuk dihuni; ruangannya sempit dan jarak antara lantai dan langit-langit rendah. Kami mulai mengajukan ide yang paradoksal, di mana keluarga klien seharusnya dapat merasakan ruang yang luas dan nyaman setelah tinggal di rumah dengan dinding yang tidak teratur dan sempit. Kami mengusulkan rencana terbuka di ruang keluarga dan ruang makan yang terhubung dengan area dapur. Hampir semua bukaan dipasang dengan tinggi dari lantai ke langit-langit.
Dengan semangat modernisme dan minimalisme, kami berharap keluarga yang tinggal di sini akan merasa segar melihat bangunan yang tertata rapi dengan dinding yang disusun lebih sederhana. Kami juga menambahkan bata dan tanaman gantung di area fasad untuk mengurangi ketegangan kondisi perkotaan di sekitar kawasan perumahan.
Revolusi diri dapat dimulai dari keluarga (sebagai bagian paling intim dari kita). Renovasi rumah adalah bagian dari merevolusi keluarga menjadi lebih baik. Rumah yang baik dapat membentuk penghuninya untuk berperilaku lebih baik. Rumah ini unik; kami merencanakan untuk merenovasi sebagian dari rumah, tetapi kami merenovasinya secara keseluruhan. Sama seperti evolusi, evolusi yang menyeluruh lebih baik daripada evolusi parsial. Merevolusi keluarga dapat dimulai dengan merenovasi rumah yang lebih memuaskan, menjadi tonggak dalam pengembangan keluarga.
Architect
Alvath Tembria, Rangga Adi Putra M.
Location
Mataram
Year
2021


Address
Gg. Persatuan Timur No.6, Turida, Kec. Sandubaya, Kota Mataram, Nusa Tenggara Bar. 83232
Contacts
+62 813-9449-1444 (Phone/ WA)
official@tatatataarchitects.com (Email)


